Oulun vesiliikuntakeskus
Read about this project in English here.
Oulun kaupunginhallitus teki 24.6.2024 päätöksen uuden Oulun vesiliikuntakeskuksen rakentamisesta entisen Oulun uimahallin paikalle (Pikkukankaantie 3). Vanha Oulun uimahalli on purettu, ja uuden uimahallin rakentaminen alkaa alustavasti alkukesästä 2026. Rakentamisen aikataulu varmistuu myöhemmin keväällä 2026 käytävän urakkakilpailutuksen myötä.
Hanke on edennyt suunnitelmallisesti, ja vesiliikuntakeskuksen rakentamisen mahdollistava asemakaava on vahvistunut 23.12.2025. Oulun kaupunginvaltuusto päätti 10.11.2025 yhdyskuntalautakunnan päätöksen pohjalta, että vesiliikuntakeskuksen yhteyteen toteutetaan vähintään 215 autopaikkaa. Suunnitteluratkaisun mukaisesti tontille on osoitettu pysäköinnille 216 autopaikkaa ja näiden lisäksi esteettömiä autopaikkoja on 8.
Vesiliikuntakeskuksen rakentamiselle on haettu rakentamislupaa joulukuussa 2025, ja rakentamisluvan käsittelyvaihe oli helmikuussa 2026.
Oulun vesiliikuntakeskus on valmistuttuaan yksi Suomen suurimpia. Uuden liikuntarakennuksen rakennusoikeudellinen kerrosala on 13 946,5 kem2 ja vastaavasti bruttoala 22 403 m2 sekä tilavuus 138 790 m3.
Hankkeen tavoitehinta on 80 miljoonaa euroa (ALV 0 %).
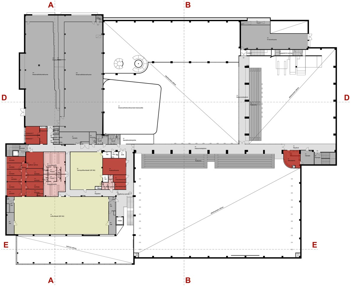
Tutustu vesiliikuntakeskuksen kerroksiin
Pohjakerros
Rakennuksen pohjakerrokseen sijoittuvat rakennuksen pääsisäänkäynti, henkilökunnan sosiaalitilat, kuntosali ja kamppailusali sekä niihin liittyvät pukeutumis- ja peseytymistilat. Pohjakerroksessa on lisäksi uimahallin allastekniset tilat ja muita teknisiä tiloja.
1. kerros
Varsinaiset uimahallikäyttöön tulevat tilat sijaitsevat rakennuksen 1. kerroksessa. Rakennuksen allasosastoille on suunniteltu 10-rataiset 50 metrin ja 25 metrin uintialtaat, syvä monitoimiallas, monitoimiallas, lasten matala allas, kaksiosainen syvempi lasten allas, kylmäallas sekä vesiliukumäki.
Vesiliikuntakeskukseen on suunniteltu miesten ja naisten pääpukuhuoneosastojen lisäksi myös esteetön pukuhuoneosasto sekä sukupuolineutraalit puku-pesutilat. Saunoja tulee kahdeksan kappaletta.
50 metrin uintiallas, jossa on kaksiosainen siirrettävä välisilta, voidaan jakaa monipuolisesti osiin ja saadaan maksimissaan jopa 20 uintirataa jaettavaksi erilaisille käyttäjäryhmille. Vesiliikuntakeskukseen on mahdollista järjestää jopa 38 kpl 25 metrin ratoja.
Hyppytornissa on kerrostasot 1 m, 3 m, 5 m, 7,5 m sekä 10 m. Ponnahduslautoja on 2 kpl 3 m, 2 kpl 1 m sekä 0,6 m.
Pääpukuhuoneosastot on suunniteltu siten, että kilpailujen aikaan pukuhuoneista voidaan erottaa osa kilpailijoita varten. 50m metrin allashuone sekä syvä monitoimiallashuone ovat erillisiä tiloja, joten kilpailujen aikaan muut altaat voivat olla kuntalaisten käytössä.
2. kerros
Rakennuksen ylimmässä (2.krs) kerroksessa sijaitsevat liikuntasali ja terveysliikuntasali sekä pääosa toimistotiloista. Näiden tilojen iltakäyttö on mahdollista myös erillisen sisäänkäynnin ja hissillisen portaikon kautta. Tiloille on omat samassa tasossa sijaitsevat puku- ja pesutilat. Allasosastojen toiseen kerrokseen sijoittuvat katsomot, selostamot ja osa teknisistä tiloista. 50 metrin altaalla sekä syvällä monitoimialtaalla (hyppytorni ja ponnahduslaudat) on omat katsomot. Katsomot on mitoitettu siten, että 50 metrin altaan osalle on mahdollista sijoittaa 540 katsojaa ja syvän monitoimialtaan osalla 220 katsojaa.
Esteettömyyden huomiointi
Rakennuksen esteettömyyteen on kiinnitetty erityistä huomiota piha-alueen järjestelyistä sisätilojen yksityiskohtiin saakka. Rakennukseen on varattu tilat mm. opaskoirille. Esteettömyys on huomiotu piha-alueen ratkaisujen lisäksi rakennuksen sisäänkäyntiratkaisuissa, liikenneväylillä ja -reiteillä, oviratkaisuissa, hissiratkaisussa, liukukäytävä- ja porrasratkaisuissa, puku- ja peseytymistiloissa, allasalueilla, esteettömissä WC-tiloissa, katsomoissa, palvelupisteissä, induktio- ja kuuluvuusratkaisussa sekä kaikkien pienimpienkin opasteiden tasolla.
Allasosastoilla esteettömyyttä varmistetaan suunnistettavuutta helpottavilla väri- ja valaistusratkaisuilla. Allashuoneissa on useita allasnostimia. Kiinteät itsenäisesti käytettävät allashissit (tasonostin-tyyppinen) sijoitetaan 25 m ja 50 m uima-altaille sekä monitoimialtaalle. Lisäksi käytössä on yksi siirreltävä akkukäyttöinen allasnostin.
Esteettömyyden huomiointi palvelee myös ikääntyvän väestönosan tarpeita. Suunnittelussa on pyritty siihen, että tilojen käyttö olisi mahdollisimman helppoa ja yksinkertaista esim. rannekkeiden avulla.
Pysäköinti
Uusi uimahalli rakennetaan tontin pohjoisreunaan, puretun uimahallin paikalle. Uusi uimahalli on purettua suurempi, joten se sijoittuu osittain myös aiemmalle pysäköintialueelle.
Pysäköintialueelta pysäköintilohkojen väleistä johtaa jalankulkutiet rakennuksen pääsisäänkäynnille. Jättöliikenteelle on runsaasti tilaa ja sieltä on turvallista poistua pääsisäänkäynnille. Huoltoliikenne on erotettu jalankulkuliikenteestä. Jätehuollon ja keittiön täydennyksiä hoitavat ajoneuvot käyttävät eri aluetta kuin asiakkaat. Kemikaalitäydennykset tapahtuvat huoltopihalta sijoitettuna erilleen rakennuksen muilta kulkuväyliltä. Rakennusta palveleva muuntamo on sijoitettu huoltopihan yhteyteen.
Tulevat vaiheet
Rakentamislupa
02/2026
Urakkakilpailutus
03-05/2026
Rakentaminen alkaa
06/2026
Rakennus valmistuu
alkuvuosi 2029 (alustava arvio)*
*Varmistuu urakkakilpailutuksen jälkeen.